歐盟認證快訊:徐州科利達電控科技有限公司獲得歐盟強制CE認證證書;徐州科利達電控科技有限公司生產的料流檢測器、雙極跑偏開關、雙向拉繩開關、撕裂檢測器、速度檢測器等通過歐盟認證BST公告機構的CE認證安全評估,產品各項指標符合歐盟強制認證法規要求并取得CE認證證書。在此表示祝賀。登陸歐盟市場滿足歐盟法規要求,CEEU做您全球戰略布局基礎;


適應范圍
LXC系列計量式螺旋秤是將杠桿式電子皮帶秤的稱量技術原理與螺旋輸送機有機結合起來的一種新型電子秤。它主要適用于對粉狀、散裝物料進行連續輸送、動態計量、控制給料量的計量設備。尤其適用于老廠改造過程中,空間狹小,無法裝設其他型式的電子計量設備場所。改產品2003年被江蘇省科學技術廳認定為高新技術產品。
產品型號及含義

工作原理
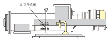
當物料被螺旋輸送的過程中,安裝在螺旋輸送機下面得稱重傳感器檢測到物料的重量并產生于一個正比于載荷的電壓信號,同時,安裝于螺旋輸送機尾部的速度傳感器檢測到螺旋輸送機主軸的速度信號,兩種信號同時送入稱重積算儀,經積分運算后得出瞬時流量值和累計量值。
工作原理圖

系統特點
密封結構,無粉塵外揚;
動態計量同螺旋輸送相結合,實現動態連續計量;
結構緊湊,占用空間小,運行穩定性可靠;
自動調零,自動調間隔,所有參數均采用按鍵式輸入;
采用砝碼標定,標定簡單、方便;
光電式測速傳感器,精度高,抗干擾能力強;
同葉輪給料機配合可實現定必定量配料,也可采用料倉直壓式實現調速配料。
主要技術參數
稱重能力:≤300t/h
計量精度:優于±0.5%
給料距離(中心距)≥1000mm
電流輸出:0~20mA或4~20mA
通訊接口:RS232或RS485
工作條件和安裝條件
環境溫度:
儀表:-10°C~50°C
機械:-20°C~60°C
電源電壓:220/380VAC(+10%、-15%)、50HZ(±2%)
外形尺寸和安裝尺寸示意圖


